Баня строиться на вашем участке, а не в цеху.
Под ключ: с фундаментом, доставками, полками и печкой.
* в стоимость не входит фундамент и доставка до участка
Каркасные бани — это прекрасное сочетание цены, качества и скорости строительства. Они подойдут тем, кто ищет комфорт и тепло без переплат. Главное — выбрать проверенного подрядчика!
Каркасная технология позволяет собрать баню за 2–4 недели. Это идеальный вариант, если хочется «попариться» уже в этом сезоне.
01
Сравнительно с брусовыми или бревенчатыми банями, каркасные обходятся дешевле на 20%. Особенно, если выбирать стандартный типовой проект.
02
Благодаря легкости материалов не требуется массивный фундамент, что также снижает общую стоимость строительства.
03
Каркасные бани отлично держат тепло при условии правильной теплоизоляции и материалов. Быстро нагреваются и долго остывают.
04
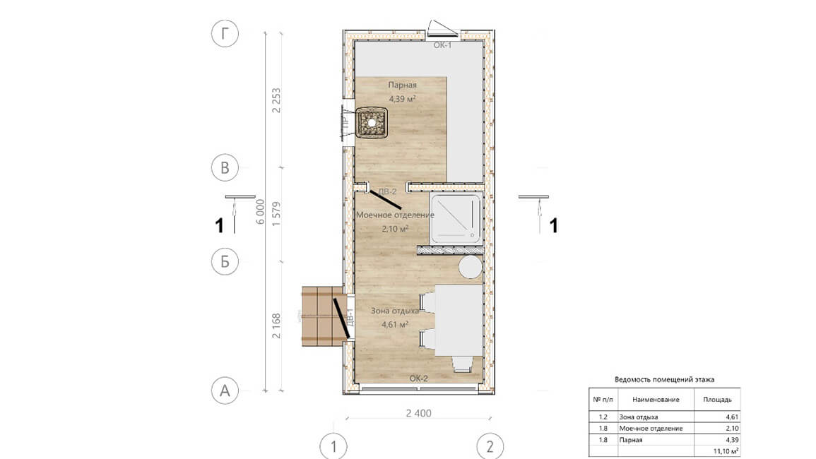
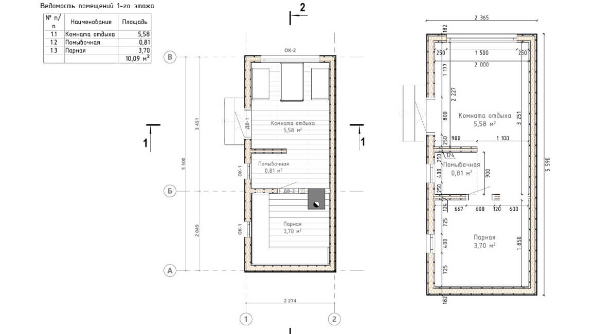
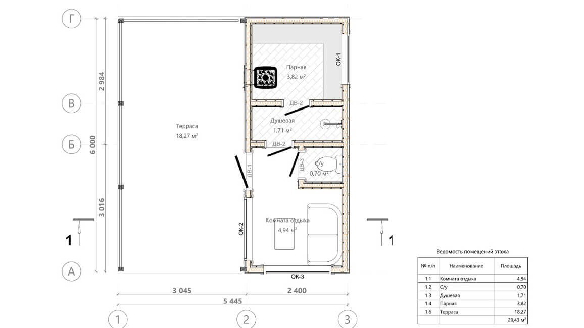
Легкость конструкции позволяет реализовать уникальные планировки: бани с террасой, мансардой, комнатой отдыха, душевой, санузлом и т.д.
05

Каркасные бани ценят за скорость строительства и предсказуемый результат. Легкий каркас не требует массивного фундамента, а работы занимают считанные недели. Благодаря современным утеплителям такая баня быстро прогревается и хорошо держит тепло, что снижает расход дров или электричества. Плюс каркасная технология дает свободу планировки и отделки — легко сделать удобную парную, душевую и комнату отдыха под себя и свой бюджет.
Фирма «ЗАГОРОДОМ» в Перми — аккредитованная строительная компания. Работаем с крупными банками России, которым можно доверять.
Мы работаем только с проверенными материалами и соблюдаем технологию — поэтому уверены: и через 5 лет баня сохранит тепло, аккуратный внешний вид и качество отделки.
Сроки напрямую зависят от опыта мастеров. У нас работают строители со стажем от 5 лет, мы строим по правильной каркасной технологии, соблюдая нормы и СНиПы.
Каркасная технология позволяет возводить бани в любое время года без потери качества и с соблюдением сроков. Каждый объект выполняется под личным контролем директора и собственника компании Алексея Викторовича, специалиста с семилетним опытом в каркасном строительстве.
Оставьте свои данные для консультации. И мы свяжемся с вами в ближайшее время.
2023-2024 Строительная компания «ЗАГОРОДОМ» ©
все права защищены. ИНН 590610175210
ИП Мельчаков Алексей Викторович
Адрес
2023-2024 Строительная компания «ЗАГОРОДОМ» ©
все права защищены. ИНН 590610175210
ИП Мельчаков Алексей Викторович
Все права на публикуемые на сайте материалы принадлежат ИП Мельчаков Алексей Викторович. Любая информация, представленная на данном сайте, носит исключительно информационный характер и ни при каких условиях не является публичной офертой, определяемой положениями статьи 437 ГК РФ
Разработка сайта: Linkodium (2025)
Оставьте свои контактные данные и мы свяжемся с вами в ближайшее время.
Оставьте свои контактные данные и мы свяжемся с вами в ближайшее время.