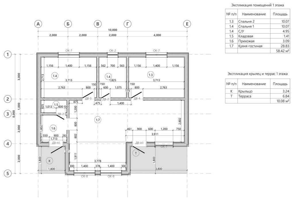
- Проект на 2 спальни, кухню-гостиную
- Санузел, тех помещение
- Крыльцо и терраса
- Высокие потолки, панорамное остекление и удобная планировка
- Дом по этому проекту станет местом притяжения и радости для всей семьи
В штате нашей компании работает архитектор, что позволяет нам разрабатывать и реализовывать индивидуальные проекты любой сложности с учётом ваших пожеланий.
Площадь дома:
58 м²
Площадь террасы:
10 м²
Стандартная комплектация:
Материалы (дом)
- Каркас сухая строганная доска (камерная сушка)
- Фундамент – винтовые сваи
- Антисептик
- Утеплитель Knauf
- Сетка от грызунов оцинкованная
- Отделка фасада – имитация бруса сорт АB
- Защитные мембраны Ondutis, пароизоляция Finka (либо аналоги)
- Строительный скотч Delta или Finka
- Кровля- клик фальц
- Внутренняя отделка потолка имитацией бруса сорт AB (без окрашивания)
- Внутренняя отделка санузла: пол кварцвинил, стены имитация бруса без окрашивания;
- Внутренняя отделка стен – имитация бруса сорт AB (без окрашивания)
- Окна 5 камерные стеклопакеты c мультистеклом наружной ламинацией RAL 7024, rehau;
- Входная дверь пластиковая профиль rehau;
- Межкомнатные двери
- Черновой пол – фанера
- Снегозадержатели
- Водосточная система
- Вентиляция-приточные клапана, вытяжка кухня, санузел
- Расходные материалы (гвозди, саморезы, уголки, пластины, штифты, биты, скобы, отрезные диски, кисти)
- Ламинат 33 класс
- Пластиковые плинтуса для пола
- Террасное масло
- Уличный кран
Терраса
- Фундамент – винтовые сваи
- Монтаж фундамента
- Каркас сухая строганная доска
- Монтаж пола
- Изготовление и монтаж каркаса из сухого строганого пиломатериала -лиственниц
- Кровля – клик фальц
- Окрашивание защитным маслом
- Изготовление крыльца
- Террасное масло
- Изготовление и монтаж ступеней
Виды работ (дом)
- Изготовление каркаса дома из сухого строганного пиломатериала (ель / сосна)
- Изготовление и монтаж фундамента
- Изготовление и монтаж кровли
- Антисептирование нижнего перекрытия
- Утепление стен минеральной ватой 200 пол, 200 стены, 250 потолок
- Монтаж сетки от грызунов
- Монтаж защитных мембран и плёнок (гидроветрозащита/ пароизоляция)
- Проклейка стыков строительным скотчем Delta
- Монтаж водосточной системы и снегозадержателей
- Окрашивание фасада маслом
- Монтаж имитации бруса на фасад дома
- Установка окон, монтаж отливов, установка подоконников
- Монтаж имитации бруса (внутренняя отделка стен и потолка)
- Установка входных дверей
- Установка межкомнатных дверей
- Разводка электрики (выводы под розетки: 3 шт. на каждую спальню, 6 шт. на кухню гостиную, 2 шт. на террасу). Выводы под освещение: 1 вывод на каждую спальню, 2 вывода на кухню гостиную, 2 вывода на террасу
- 1 вывод на прихожую
- 1 УЗО в санузел, реле напряжения на каждую фазу. Автоматические выключатели DEKraft, кабель ВВГ-П нг-LS 3-2.5
- Монтаж разводки водоснабжения ( до 10 водорозеток)
- Укладка ламината, монтаж плинтусов
- Доставки материалов
Стоимость строительства дома:
от 4 800 000 ₽
*Стоимость указана за дом в комплектации теплый контур.
Теплый контур, это готовый дом, с отделкой снаружи, но без отделки внутри и без коммуникаций.
Подробности комплектации уточняйте у менеджера.